NAYMAH HASHMI

Queens Residential

In recent years, many refugees were granted politcal asylum by the US and other countries which led to a challenge for the architects and urban planners on how to provide shelter for them and assimilate them to the community. Taking the state of New Jersey, where there are large refugees orginating from Syria, Iraq, Burma, etc., and providing them with help they need to get back on their feet and support themselves.
In recent years, many refugees were granted politcal asylum by the US and other countries which led to a challenge for the architects and urban planners on how to provide shelter for them and assimilate them to the community. Taking the state of New Jersey, where there are large refugees orginating from Syria, Iraq, Burma, etc., and providing them with help they need to get back on their feet and support themselves.
NORTH ELEVATION
In recent years, many refugees were granted politcal asylum by the US and other countries which led to a challenge for the architects and urban planners on how to provide shelter for them and assimilate them to the community. Taking the state of New Jersey, where there are large refugees orginating from Syria, Iraq, Burma, etc., and providing them with help they need to get back on their feet and support themselves.

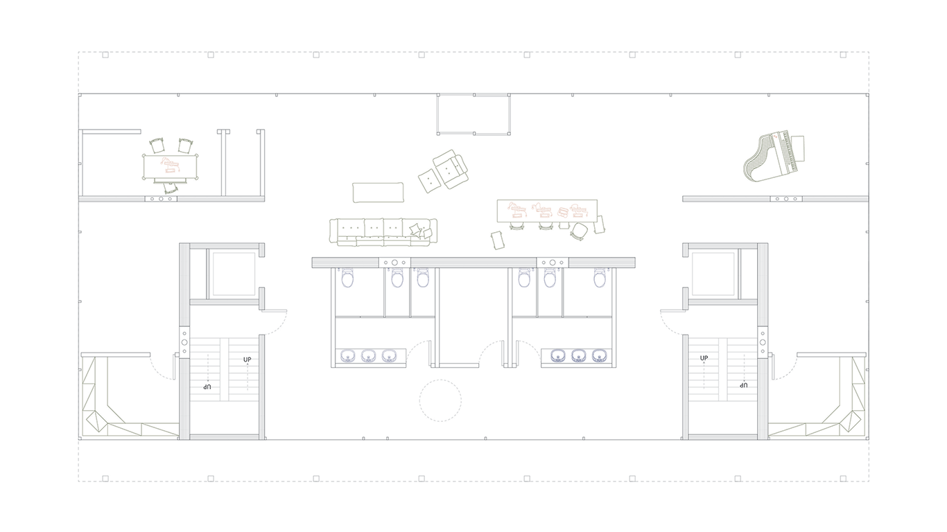
Basement Plan

Ground Plan

Second Floor Plan

Third Floor Plan

Fourth Floor Plan

Fifth Floor Plan

Sixth Floor Plan

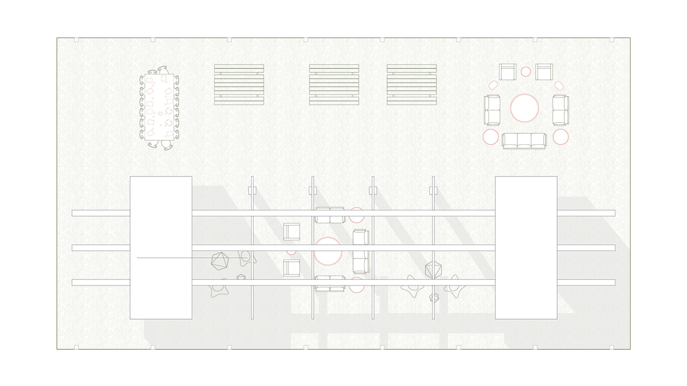
Roof Plan

CORNER COMMUNAL UNIT
LARGE COMMUNAL UNIT
LONGITUDINAL SECTION
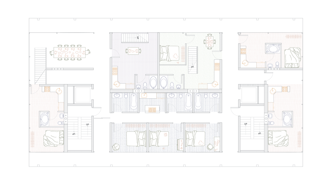
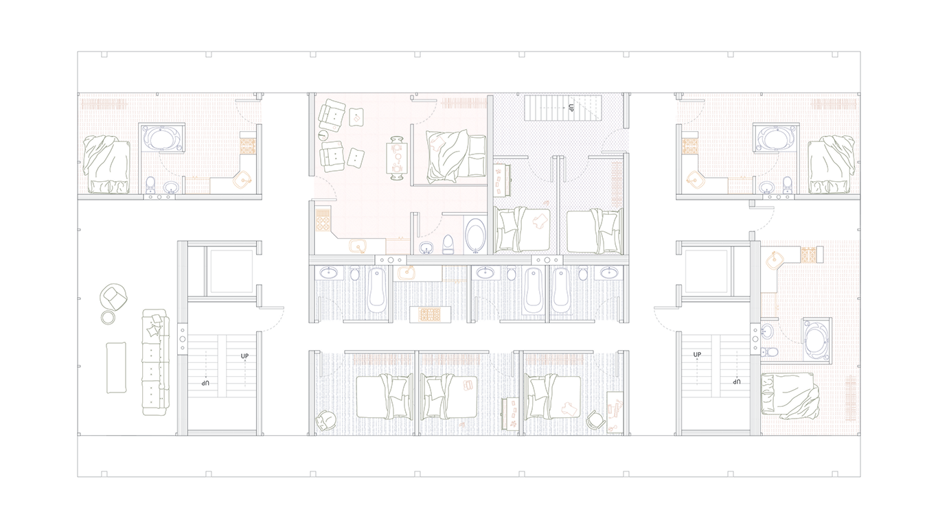
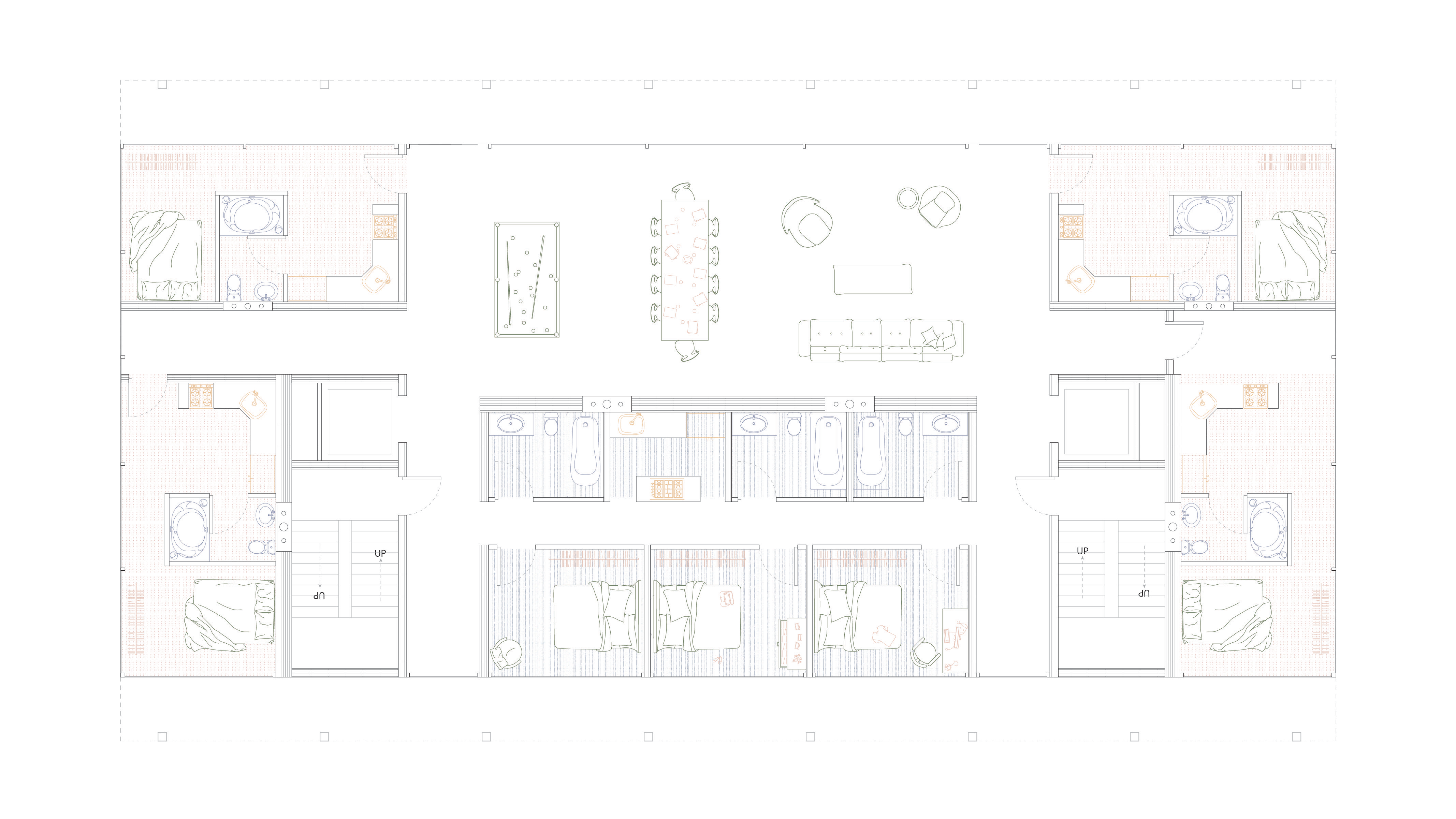
Plan of the units were caterogized by 3 different needs; ADA, live-work, and decoupled live-work. The units on the first floor are all ADA accessibility, so residents with wheelchairs can use the unit to its full, and the units on the second and third floor are either live-work or decoupled, paired with a set of stairs. To maintain the linear circulation, the units were arranged with linear circulation with programs at the side. In the decoupled units, the circulation was meant to lead to the office space.
AXONOMETRIC
Plan of the units were caterogized by 3 different needs; ADA, live-work, and decoupled live-work. The units on the first floor are all ADA accessibility, so residents with wheelchairs can use the unit to its full, and the units on the second and third floor are either live-work or decoupled, paired with a set of stairs. To maintain the linear circulation, the units were arranged with linear circulation with programs at the side. In the decoupled units, the circulation was meant to lead to the office space.
DETAILED WALL SECTION
Plan of the units were caterogized by 3 different needs; ADA, live-work, and decoupled live-work. The units on the first floor are all ADA accessibility, so residents with wheelchairs can use the unit to its full, and the units on the second and third floor are either live-work or decoupled, paired with a set of stairs. To maintain the linear circulation, the units were arranged with linear circulation with programs at the side. In the decoupled units, the circulation was meant to lead to the office space.
SITE PLAN
Plan of the units were caterogized by 3 different needs; ADA, live-work, and decoupled live-work. The units on the first floor are all ADA accessibility, so residents with wheelchairs can use the unit to its full, and the units on the second and third floor are either live-work or decoupled, paired with a set of stairs. To maintain the linear circulation, the units were arranged with linear circulation with programs at the side. In the decoupled units, the circulation was meant to lead to the office space.